Квартира в ЖК Петровская Ривьера
Петровский остров в Санкт-Петербурге когда-то был любимым местом отдыха сначала Петра I, а потом и Екатерины II. Сейчас это район элитной жилой застройки с видом на акваторию Невы и исторический центр города.
Наши заказчики приобрели две квартиры в жилом комплексе «Петровская Ривьера» на Петровском острове. Задача – объединить квартиры в одну и создать лаконичный, современный интерьер для семьи из 4-х человек.
Задача
Пожелания по составу помещений были следующими:
- большая кухня-гостиная,
- мастер-спальня с гардеробной и ванной комнатой,
- 2 детские комнаты: одна – для мальчика, вторая – для девочки,
- гостевой санузел,
- хозяйственная комната для стирки и сушки белья.

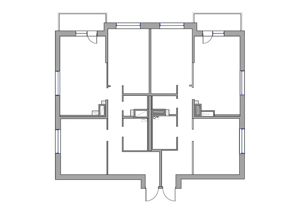
Планировочное решение
Изначальная планировка позволяла сделать 4 мокрых зоны в центральной части объединенного помещения: ванная в мастер-спальне, гостевой санузел, постирочная и детская ванная.
От главного входа в квартиру идет коридор, из которого можно попасть в комнаты детей, ванную, гостевой санузел, а затем и в светлую кухню-гостиную.
Квартиры расположены в торце жилой секции. Часть комнат выходят окнами на юго-запад. Много солнца, света, отличный вид на Малую Неву – все эти преимущества мы учитывали при разработке планировки. В результате кухня-гостиная стала залитым солнцем сердцем квартиры с шикарным видом. Эта комната функционально разделена на гостиную, обеденную и кухонную зоны.

Из обеденной зоны можно выйти на балкон. Здесь мы предусмотрели безрамное остекление, чтобы наслаждаться видом на проплывающие катера и любоваться закатом с чашечкой чая или бокалом вина.
Из зоны кухни попадаем в приватную часть квартиры: постирочную и мастер-спальню с собственной ванной и гардеробной.
В итоге квартира разделена на 4 функциональных зоны:
- входная группа, состоящая из небольшой прихожей и гардеробной,
- коридор, детская зона с ванной и гардеробными, а также гостевой санузел,
- обеденная зона с кухней-гостиной?
- приватная зона, куда входят мастер-спальня с собственной ванной и гардеробной.

Современный лаконичный интерьер
Заказчики просили нас создать современный, лаконичный интерьер без обилия декоративных элементов.
Мы выбрали в качестве основы нейтрально-серый цвет стен для всех комнат, кроме детских. В комнате для девочки мы использовали градиентные нежно-розовые обои с архитектурными мотивами, а в детской мальчика – обои с авиационной тематикой.
Стены гостиной украшены тонкими, изящными молдингами в цвет стен. Изголовье кровати в мастер-спальне декорировано реечными панелями.
Для ванных комнат выбран крупноформатный керамогранит с имитацией натуральных фактур: мрамора, дерева и черного гранита.
В качестве напольного покрытия во всей квартире, кроме ванных комнат, мы использовали паркетную доску в цвете «орех», уложенную «венгерской елочкой».

Центральный элемент гостиной – большой угловой диван темно-синего цвета с яркими, акцентными подушками. Здесь свободно может разместиться вся семья.
Зону кухни и гостиной разделяет стена с интегрированным электрокамином. На ней, напротив дивана, размещен телевизор.
Стену напротив окон мы решили не загромождать мебелью, разместив в этой зоне небольшую консоль и картину в современном стиле.

Кухонный гарнитур выполнен в минималистично-монументальном стиле. Подвесные шкафы с фасадами из массива ореха идеально сочетаются с черными фасадами напольных модулей, а внушительная толщина столешницы придает кухне некую архитектурную лаконичность и даже брутальность.
Со стороны гостиной рабочая поверхность кухни переходит в небольшую полубарную стойку для быстрых завтраков.
В обеденной зоне вдоль стены разместились три высоких кухонных пенала со встроенной техникой. Чтобы этот блок не выглядел слишком массивно, мы разбавили его остекленными модулями для хранения бокалов и декора.
В центре обеденной зоны – деревянный круглый стол, окруженный четырьмя стульями с подлокотниками. Изящные изгибы мебели смягчают и на контрасте подчеркивают монолитность линий кухонного гарнитура.

В мастер-спальне, помимо кровати, разместили небольшой туалетный столик с круглым зеркалом и комод для вещей.
В квартире мы использовали освещение разного типа. В кухне-гостиной невысокие потолки, поэтому здесь идеально подошли встроенные трековые системы и несколько небольших изящных бра для уюта.
Над диваном и обеденным столом мы повесили люстры Bezhko в минималистичном дизайне. В детских и коридоре использовали точечные светильники и люстры.
Все розетки и выключатели в квартире темного цвета, чтобы добавить акценты на плоскости стен.

Особую роль в этой квартире мы отвели предметам искусства. В гостиной над консолью повесили большую абстрактную картину современного художника Евгения Зарембы, а в обеденной зоне над столом – картину Вячеслава Михайлова, чья цветовая гамма идеально сочетается с аксессуарами на кухне. В спальне на тумбе разместили современную графику.
Проект получился простым, функциональным, не перегруженным деталями и декором. Атмосфера этой квартиры спокойная, сдержанная, уютная.
Мы старались создать для этой квартиры интерьер, в котором будет комфортно жить и детям, и взрослым. И у нас получилось.































































